







Office To Let Congleton
PROPERTY ID: 145708
PROPERTY TYPE
Office
STATUS
Let Agreed
SIZE
0 sq.ft
Key Features
Property Details
Your Ideal Workspace Awaits – Simple, Smart, All-inclusive!<br />
<br />
Looking For A Professional Space That Adapts To Your Needs? This Modern Lock-up Suite Offers 24/7 Access And A Clean, Secure Environment — Perfect For Office Use Or Client-facing Services Like Beauty Treatments, Physiotherapy, Or Chiropractic Care.<br />
<br />
For Just £175 + Vat Per Month, Enjoy A Fully Inclusive Package Featuring:<br />
• Fast, Reliable Wi-fi<br />
• Heating & Electricity<br />
• bright, Energy-efficient Lighting<br />
• stylish Communal Kitchen<br />
• well-maintained Wc Facilities<br />
<br />
Location Perks:<br />
Situated On The Popular Greenfield Industrial & Office Estate, Right On The Edge Of Congleton, With Quick Access To M6 Junctions 17, 18 & 19 – Ideal For Regional Travel And Logistics.<br />
<br />
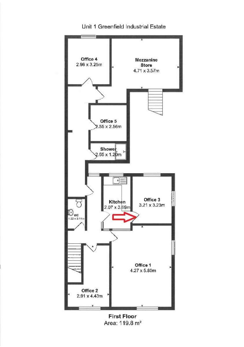
Your Suite Includes:<br />
• Size: 10'6" X 10'7" (3.21m X 3.23m)<br />
• private, Lockable Door<br />
• access Via Communal Entrance And Staircase<br />
<br />
Whether You're A Freelancer, Growing Startup, Or Remote Team, This Space Offers A Cost-effective, Professional Environment To Help Your Business Thrive.